アキュラホーム
メーカーWebサイトへ
とよたハウジングガーデン/5番区画
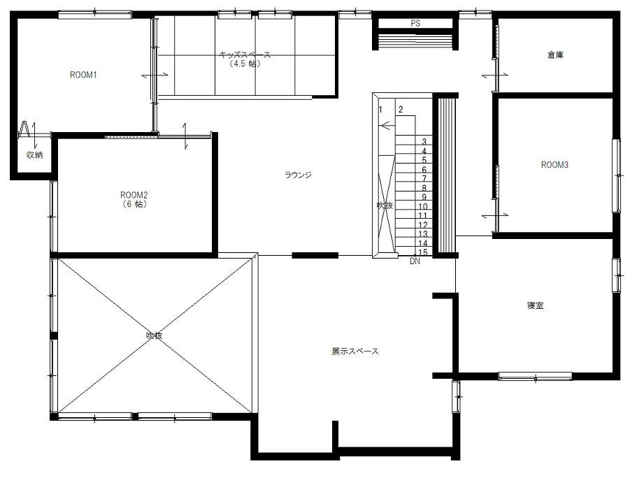
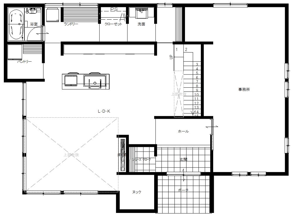
超空間の家
木造軸組工法
1階床面積:115.10㎡
2階床面積:102.35㎡
延べ床面積:217.45㎡
7月4日OPEN予定
アキュラホームの最新モデルハウスとなっております。
従来の木造住宅では叶わなかった大空間・大開口を可能にした『超空間の家』。
設計自由度はさることながら、確固とした耐震性を兼ね備えた木造住宅です。
ぜひ、ご家族揃ってお越しください。
見どころ
間取図
モデルハウス最新情報

