半田会場/2番区画
一条工務店
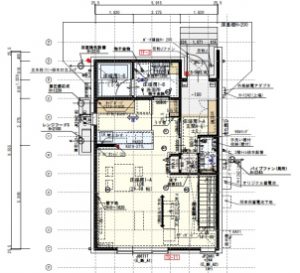
【33坪 2階建て】一条工務店人気No.1のグランスマートを見学できるイベントが開催!



人気No.1のグランスマートのリアルサイズのお家が新しく誕生!
なんとこのお家、見学だけでなく宿泊もできちゃうんです。
車の音が気にならない!?花粉が全然入ってこない!?家中床暖房!?
一度ご体感してみてはいかがでしょうか。
【大人気キャンペーン中】
今なら最大6000円分のQUOカードをプレゼント!!
詳しくは一条工務店 半田展示場まで
半田会場/2番区画
一条工務店



人気No.1のグランスマートのリアルサイズのお家が新しく誕生!
なんとこのお家、見学だけでなく宿泊もできちゃうんです。
車の音が気にならない!?花粉が全然入ってこない!?家中床暖房!?
一度ご体感してみてはいかがでしょうか。
【大人気キャンペーン中】
今なら最大6000円分のQUOカードをプレゼント!!
詳しくは一条工務店 半田展示場まで